López de Hoyos 11
Castellana, Salamanca
Estado
En venta
Superficie
243 m2
Ubicación
Castellana, Salamanca
Precio
3800000 €
Planta
3°
Dormitorios
4
Baños
5
Terraza
No
Garaje
No
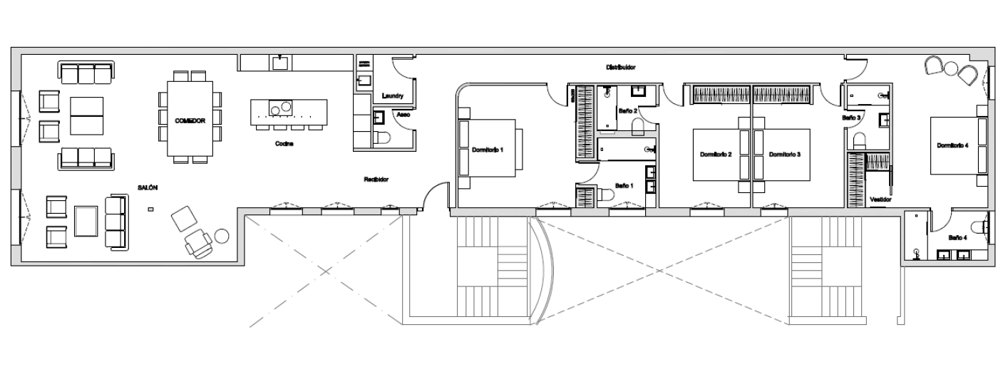
SoilGroup presenta esta exclusiva vivienda en el Barrio de Salamanca – Castellana. Situada en la calle López de Hoyos, esta propiedad de 243 m², completamente reformada y amueblada, ofrece una distribución amplia y elegante pensada para el máximo confort en una de las zonas más prestigiosas de Madrid.
La vivienda dispone de cuatro dormitorios en suite, además de un aseo de cortesía, y una generosa zona de día con salón, comedor y cocina que crean un espacio ideal tanto para la vida familiar como para recibir invitados. Los espacios destacan por su amplitud, funcionalidad y la calidad de los acabados.
Ubicada en un edificio clásico construido en 1934 con servicio de portería, la propiedad cuenta con calefacción central con medidores individuales y agua caliente individual, garantizando confort durante todo el año. Una oportunidad excepcional para disfrutar de una vivienda de gran categoría en el Barrio de Salamanca, uno de los enclaves residenciales más exclusivos de la capital.
López de Hoyos 11
Castellana, Salamanca
Estado
En venta
Superficie
243
Precio
3800000
Planta
3
Dormitorios
4
Baños
5
Terraza
No
Garaje
No